Menú

PLANTAS FLEXIBLES

Flex es ser FLEXIBLE.
Ser flexible para cada momento de tu vida, podes comprar 75 m2 ó 85 m2 y adaptarlo a tu vida. Te entregamos un Loft, un 2 ambientes o un 3 ambientes.
VOS ELEGIS!
Planta subsuelo Módulo Uno. Estacionamientos nivel -1,50m
Vista General Módulo Uno
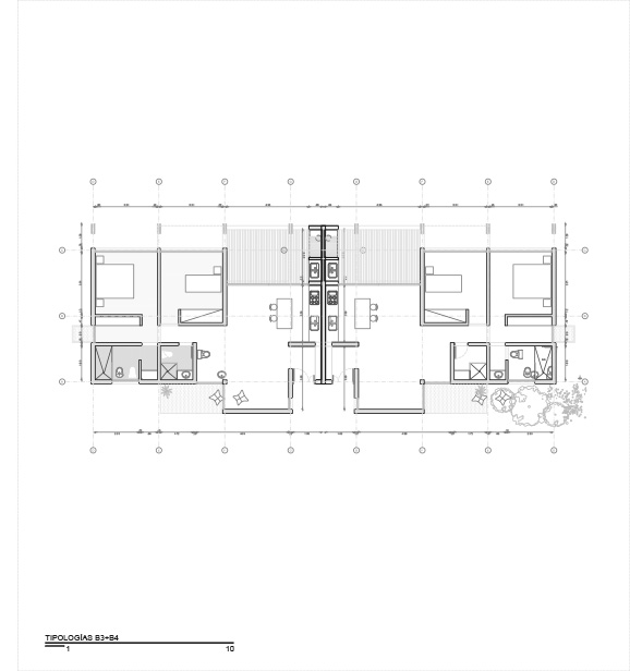
Tipología tres ambientes
Planta subsuelo Módulo Uno y Dos. Estacionaminetos nivel -1.50m
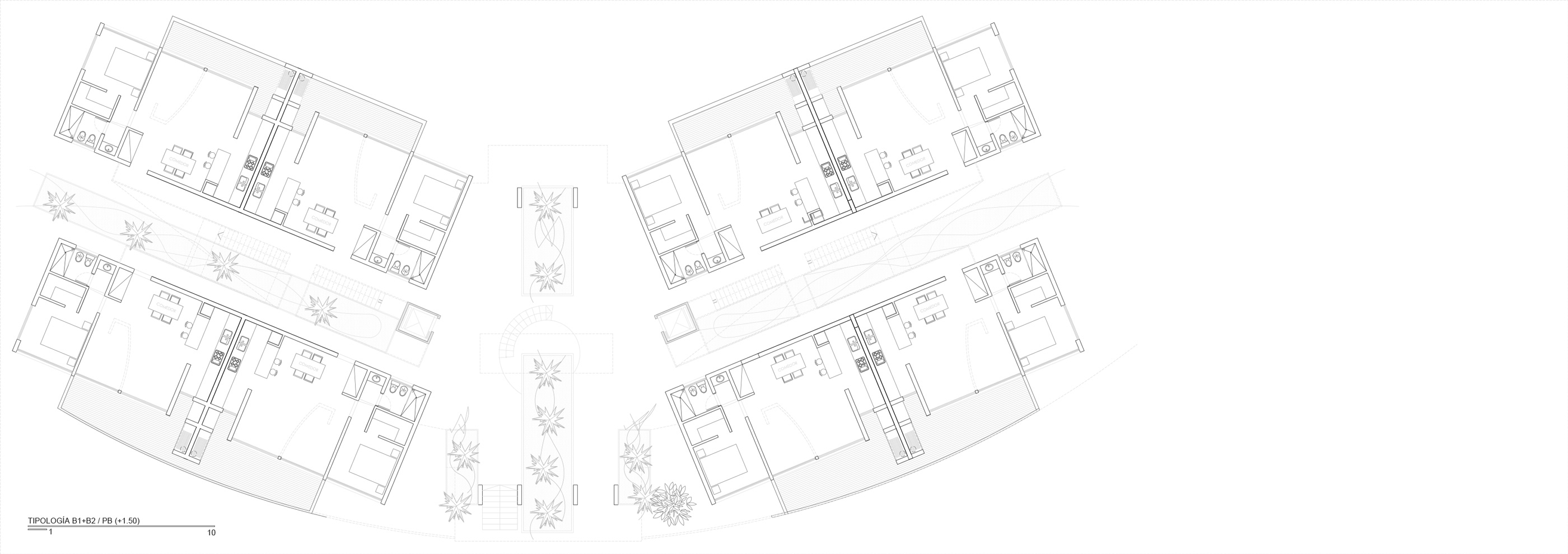
Planta baja Modúlos Tres y Cuatro. Tres ambientes nivel +1,20m
Planta baja Módulos Uno y Dos. Dos ambientes flexibles nivel +1,20m
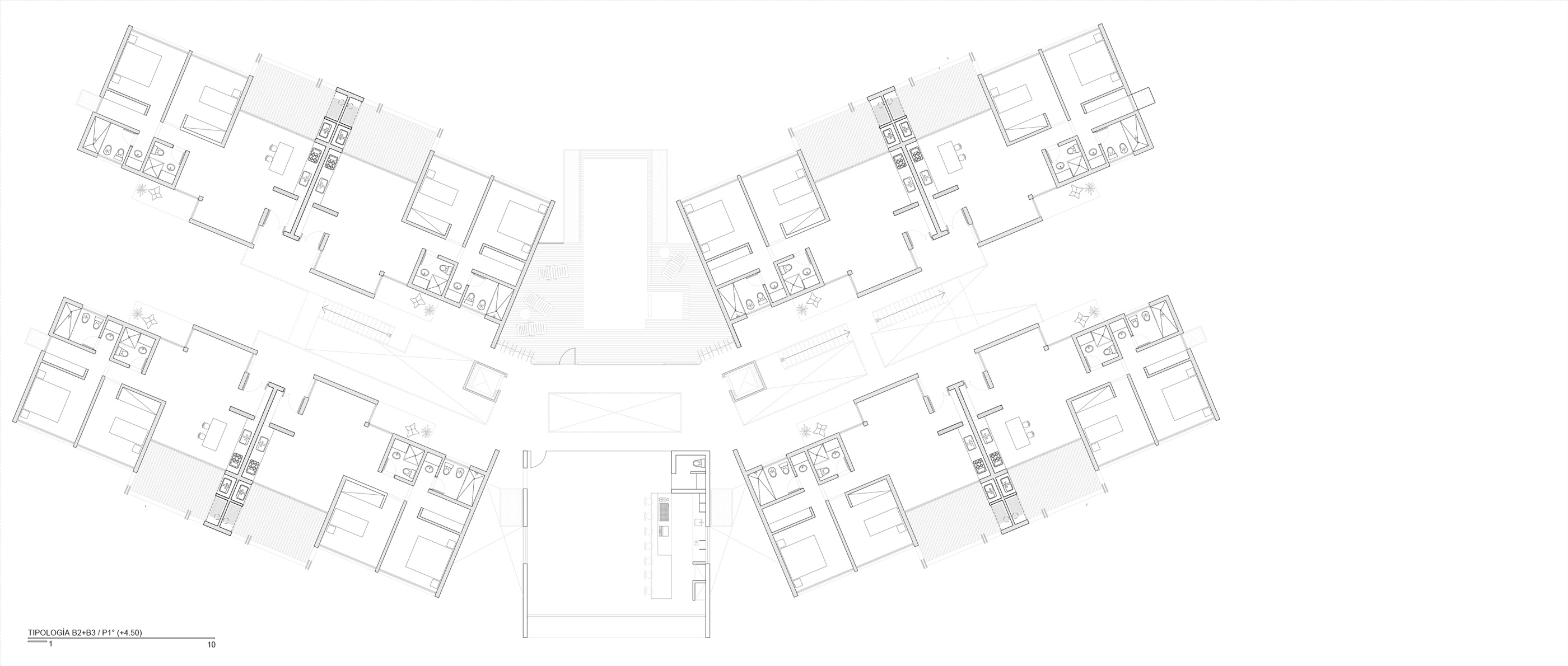
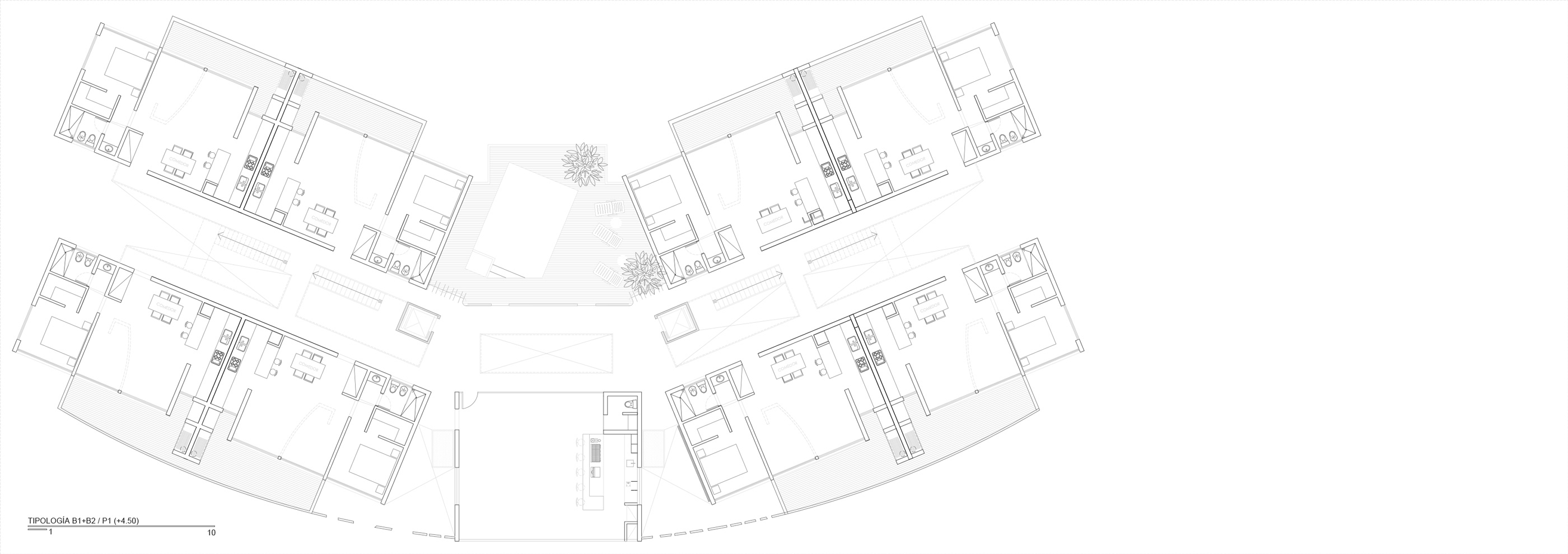
Planta primer y segundo piso Módulos Tres y Cuatro. Tres ambientes niveles +4,20m y +7,20m
Planta primer y segundo piso Módulos Uno y Dos. Dos ambientes flexibles niveles +4,20m y +7,20m
Implantación General. Techos
Implantación General. Planta Baja
Corte transversal